Quin Buildings

2 Bedroom

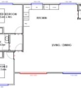
KITSET HOUSE - DESIGN 5
Single Level: 98sqm

2 Bedroom

1 Bathroom


Floor Plan:

Floor Area: 98sqm

Length: 12.2m

Width: 9m


Floorplan

2 Bedroom

We believe no other manufacturer streamlines and controls as much of the building process as well as we do – right through from sales to delivery. That's why our value for money package is so hard to beat.

When you build your new home, sleepout, garage or farm building with Quin Buildings, you can be sure you are buying quality kitsets direct from the manufacturer right here in New Zealand.

Kitset Garages

Perfect for:

  • garages
  • sleepouts
  • equipment sheds
  • light commercial work
Roofing

Many different profiles, any quantity, any length.